欢迎来到北京德泵科技有限公司官网! 加入收藏| 设为首页|联系我们

德泵科技

家用水泵安装、维护、线下综合服务

全国咨询热线18710052567

北京德泵科技有限公司

咨询热线

18710052567
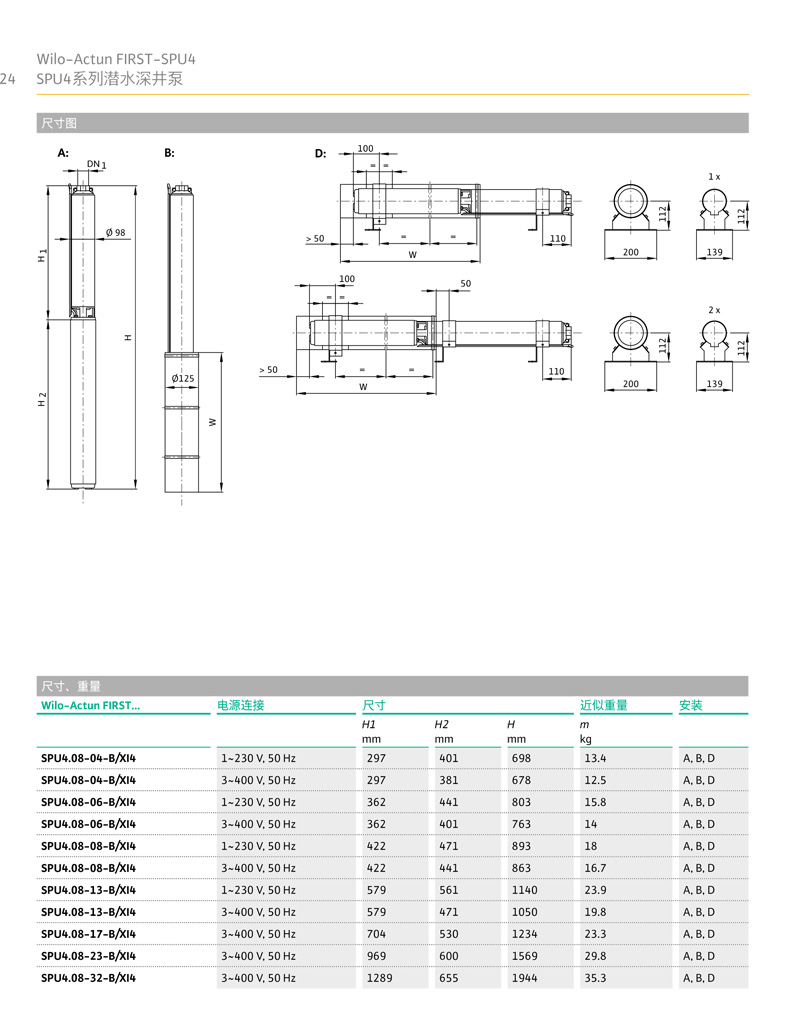
深井泵Wilo-SPU系列

浏览次数:2050次

土耳其原装进口,泵壳电机不锈钢材质,应用于深井、雨水或蓄水箱供水,家庭或中小型商业建筑供水增压,景观喷泉或灌溉,可立式、卧式安装,满足不同使用要求。

全国热线

18710052567

 

 

联系我们

北京德泵科技有限公司
全国服务热线:18710052567
QQ:546044851邮箱:deepump@163.com
地址:北京市海淀区紫竹院路69号4层裙房4006号